Property Details
Kata, Phuket
Description
RESALE: 3-STOREY POOL VILLA ON LARGE 1,747 SQM PLOT 5 MINUTES TO KATA NOI BEACH
Villa Overview – Hillside Coastal Community
Nestled within a beautifully maintained hillside estate with mature tropical landscaping, surrounded by lush gardens in a peaceful coastal setting.
This 3-bedroom pool villa for sale near Kata and Kata Noi Beaches, Phuket is set on a large plot and features 2 private swimming pools. The interiors are spacious and well-appointed, designed for relaxed tropical living. Set within one of southern Phuket’s most desirable residential communities, the estate appeals to families, long-term residents, and discerning holiday homeowners. Its prime location also offers excellent potential for high-end rental income.
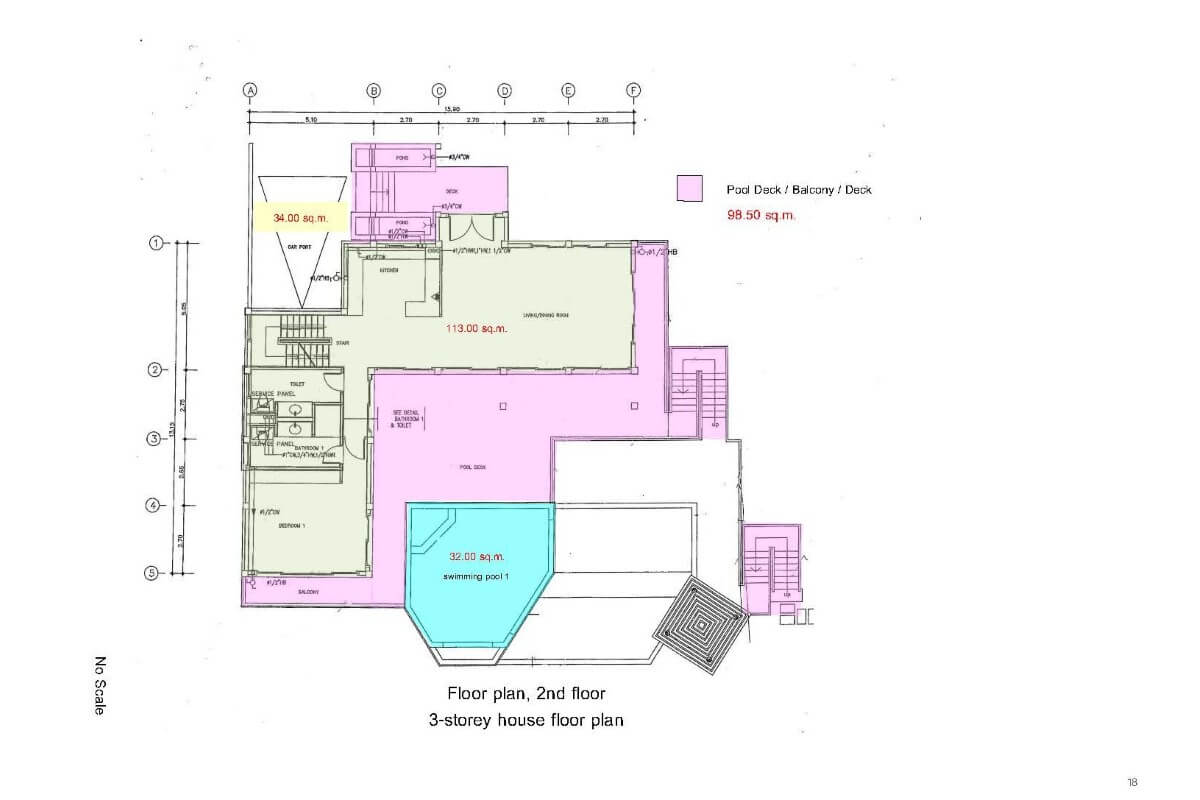
Villa Layout – To Each His Own
The villa offers an interior living area of 353 sqm, with a total built-up area of 617.5 sqm arranged across 3 levels. Entry is through the middle floor, where you’ll find an open-plan living, dining, and kitchen space, along with one bedroom and an ensuite bathroom.
Levels connect through both internal and external staircases. The lower floor includes another bedroom with ensuite, a maid’s room with ensuite, a pump room, and storage. On the upper level, the 3rd bedroom also enjoys its own private ensuite.
Pool & Outdoor Living – Medium and Large
The villa is arranged across multiple outdoor levels, set on a large 1,747 sqm plot. The 2nd floor includes a 34 sqm car park and a spacious 98.5 sqm balcony and terrace extending along 2 sides of the 32 sqm upper pool.
Below, a 27 sqm pool deck creates a relaxed setting beside the large 40 sqm lower pool. The upper pool also overlooks the lower pool, giving the outdoor space a distinctive tiered layout framed by tropical greenery.
Development Overview – Professionally Managed
An exclusive hillside estate spanning 32 rai, completed in 2003, and home to 34 villas with 2 to 6 bedrooms. Each residence enjoys sea views, sunsets, or peaceful tropical surroundings.
Residents have access to a clubhouse with an on-site restaurant and café, a shared swimming pool, a fitness centre, and a tennis court. The estate is professionally managed by CBRE.
Location & Accessibility – Coast to Coast
Located in the foothills above and between Kata and Kata Noi, this hillside estate offers easy access to two of Phuket’s most desirable southern beaches. Residents can access Kata Noi Beach on foot through a discreet rear gate with secure entry.
Restaurants, cafés, bars, and shops line the connecting coastal road and the surrounding area, making them easily reachable on foot or with a very short drive. Kata Beach is less than 10 minutes away, while Patong is around 25 minutes. Phuket International Airport is approximately 1 hour and 40 minutes away.
Contact Thai Residential – Phuket Property Centre
With years of experience in Phuket’s property market, we understand established estates that remain desirable thanks to prime locations and enduring quality. Let Thai Residential guide you to the right property.
Property details, pricing, and availability may change without notice. Please contact us to confirm current information or explore similar listings.
📧 info@thairesidential.com
📱 +66 (0) 94 841 1918
Property Features
- Villa / Houses
- 3 bed
- 3 bath
- Air Conditioning
- Pool
- 1,747 sqm
- 617.50 sqm
- Secure Parking
- Balcony
- Deck
- Outdoor Entertaining
- Clubhouse / Country Club
- Collective / Protected Leasehold
- Fitness Centre / Gym
- Fully Furnished
- Gated Community
- Large Plot / Land
- Large Pool
- Laundry Facilities / Services
- Maid's Room / Staff Quarters
- Near Beach
- Private Pool
- Professionally Managed
- Resale
- Shared Pool
- Sports / Recreational Facilities
- Storage / Utility Room


















Social Contact